
万丰海岸城目前主推瀚府二期,备案均价约5.5万/㎡ ,折后单价4.8万/㎡起,均价约5.33万/㎡,总价488万起。• 100㎡三房:特价房488万起,常规房源折后总价490至567万,单价处于4.9至5.67万/㎡。• 116㎡四房:折后总价560至640万,单价4.83至5.52万/㎡。• 143㎡四房:折后总价720至843万,单价5.03至5.89万/㎡。• 144㎡四房(6栋楼王):折后总价712至812万,单价4.95至5.64万/㎡。• 189㎡四房(6栋楼王):折后总价983至1091万,单价5.19至5.77万/㎡。如此优惠的价格,买到就是赚到!想了解更多内部折扣,欢迎咨询开发商售楼处咨询/开发商电话☎ (中介勿扰)

万丰海岸城新一期项目檀府目前已建至十几层,最新节点曝光:预计9月20日开放展厅和样板,10月份中下旬左右取证入市!同时项目的面积段曝光出炉,89-91㎡三房二卫,93-平米的四房二卫,139㎡的五房二卫,169㎡的六房。本次使用率高达104%。
檀府相比于万丰海岸城离地铁更近!同样享受深圳外国语宝安学校学区!本次推售是新规户型。户型图


万丰海岸城,项目位于宝安区沙井街道南环路与宝安大道交汇处,是一个集商业、住宅、产业、甲级写字楼、高端酒店、学校教育、文化休闲、交通枢纽、生态公园于一体的超大型城市综合体项目。
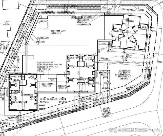
檀府项目由分南北两个地块组成,共有7栋超高层住宅和1所幼儿园,其中:5栋为商品房住宅,2栋为保障房,规划总户数2496户,其中普通商品房1392户,保障房1104户。
北地块(01-01),建设用地面积1.89万㎡,总建筑面积17.93万㎡,计容建筑面积12.85万㎡,容积率6.78。
规划建设4栋(45-47层)超高层住宅和1所幼儿园,该地块为纯商品房,总户数为1100户,机动停车位1309个。
沙井万丰项目A、B区规划商业总建面超66万㎡,致力于打造成为西部最具代表性的商业中心。作为海岸集团继南山海岸城、无锡海岸城的全国第三座、深圳第二座“海岸城”,将再次以超大体量+城市平台超级链接,革新深圳西部商业面貌。


南地块(01-02),建设用地面积1.75万㎡,总建筑面积18.28万㎡,计容建筑面积13.51万㎡,容积率7.72。规划建设3栋(48-53层)超高层住宅,总户数1396户,其中保障房1104户,普通商品房住宅292户,机动停车位1411个。

本次推售的万丰海岸城檀府(北地块),总占地面积约1.89万㎡,总建筑面积约17.96万㎡,计容建筑面积约12.87万㎡,容积率6.79,绿化率40%,共由4栋46-47层住宅组成,其中3栋1单元/2栋2单元商品房45层,3栋2单元商品房46层,2栋1单元47层,规划1所12班幼儿园。

万丰海岸城目前已经推出了玺园、锦园、瑧园三区,其中,2020年万丰海岸城玺园、锦园同时推出,共721套房源,户型建面约73-143㎡均价约5.75万/㎡,最低社保入围月数为278个月;2021年万丰海岸城瑧园建面约81-136㎡均价约5.75万/㎡,入围最低积分59.1分,

商业:项目规划建设约14万㎡商业,如果后续海岸城扩容70万㎡拆迁范围的话相信一定也是会有商业配套规划,并且一定会比现在海岸城的商业规模要大,后续不仅能满足社区自身的购物娱乐需求,对沙井的大型商业配套也是一个强有力的补充。
不完全统计,除了项目附近分布的零散商业外,距离项目较近的几个小区也都建有配套商业,例如博林君瑞、丽莎花都等,其中万科星城配建有约26.8万㎡的商业配套。另外沙井形色城,沙井天虹这两处集中式购物中心是片区内运营多年的成熟商业,是目前沙井老城居民购物的主要场所。

临近地铁11号线马安山站,此外,区域内另有地铁12号线号线(规划中);穗莞深城际轨道交通线也已开通,该线路连接广州北站一深圳机场,预留延长线至深圳福田中心区。 深圳机场东枢纽(规划中)将按照6台14线规模在地下设站。航空方面片区内拥有深圳宝安国际机场,与60个城市通航,位居国内机场排名第三。
从宝安机场客运码头出发,可以到达香港、澳门、广州、珠海、中山5座城市。陆路交通已经形成“两横三纵”,“两横”是项目南北两侧的南环路、新沙路,“三纵”是项目西侧宝安大道、东侧中心路和107国道。高速方面拥有“四大高速”,广深高速、京港澳高速、广深沿江高速、外环高速等。深中通道预计2024年建成通车。

【深圳外国语学校宝安学校】海岸集团代建的深圳外国语学校宝安学校,是宝安区引入的首个深圳四大名校。学校拥有102个班级,4740个学位,是目前深圳规模最大的九年一贯制学校。


由海岸公园、大钟山公园、架空层公园,形成立体生态体系。家楼下享有约4万㎡海岸公园休闲空间,公园设有400m跑道、儿童游乐场、健身器材区、下沉式花园、戏水景观等,满足全家人户外娱乐休闲、健康生活。

医疗:项目1公里范围内分布有马鞍山社康,万丰社区社康,除此之外距离项目较近的两所医院是万丰医院和深圳天伦医院,日常小的身体不适可就近就医相对便利。离项目最近的大型公立医院是沙井人民医院,距离项目直线公里,距离稍远,缺少一定便利性,医疗借助交通工具通行。
商业配套:项目拥有约20万㎡的万丰海岸城购物中心,作为南山海岸城购物中心的升级版,将成为西部商业文化中心,满足居民的购物需求。
教育资源:紧邻深圳外国语学校宝安分校(九年一贯制学校),是宝安区引入的首个深圳四大名校,学区优势明显。
休闲设施:项目坐拥三重立体园林体系,包括海岸公园、大钟山公园和架空层公园,为居民提供约4万㎡的休闲空间,满足全家人户外娱乐休闲、健康生活的需必博官方网站求。
项目提供多种户型选择,包括约89-166㎡的3-4房,满足不同人群的需求。
采用大面积铝板、大理石和low-e玻璃等高规格用材标准,比肩南山福田豪宅,为业主提供高品质的居住环境。
万丰海岸城瀚府二期是万丰海岸城的一部分,该整体项目计划总投资过百亿,涉及拆除用地面积约25万㎡,未来或成深圳近年来最大的旧改项目之一,发展潜力巨大。
总体来说,万丰海岸城是一个具有潜力的住宅项目,特别是对于有学龄儿童的家庭和追求便捷交通配套的购房者。