
各位关注华润中环置地中心望云的朋友们,大家好!我是项目开发商营销总颜总,今天特意和大家深入分享这座由华润与中环置地联手打造的城市中心标杆人居项目。中环置地中心.望云售楼处预约电话☎:✅✅
案场预约制 看房需提前来电预约登记中环置地中心.望云售楼处预约电话☎:✅✅
请务必致电与销售确认时间,仅预约客户可进入销售现场,避免空跑,感谢您的支持

看房需提前来电预约登记请务必致电与销售确认时间,预约客户可优先进入销售现场,避免空跑,感谢您的支持!


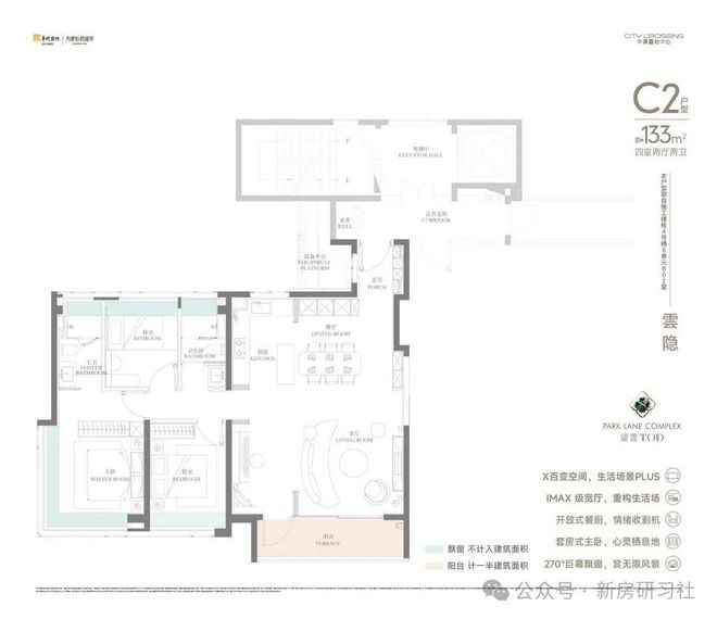
中環置地中心·望雲将推出86套房源,建面约133-188㎡4房产品。建面约165㎡公园头排全景舱新品上市,建面约133㎡绝版户型最后收官。中环置地中心.望云售楼处预约电话☎:✅✅

位于2#号楼,是地块内唯一南向面对景观资源的楼栋,对望南大走马塘水岸公园(规划中),将水岸生活酿成诗,是城市中心难再觅的奢侈。尊享建面约188㎡同款专属电梯厅,四开间朝南,打造出巨幕式家庭大公区;主卧卫生间,采用双台盆设计;270°环幕飘窗,把风景“写”进日常,让每一寸空间都流淌着自然诗意。中环置地中心.望云售楼处预约电话☎:✅✅

位于6#号楼,楼下即是景观戏水池,凭借奢享园林景观的上佳位置,随时随地亲子嬉戏,无遮挡享绿意景观,真正的推窗见景。超阔面宽,墅级采光面,270°全景飘窗,无遮挡全景飘窗,开阔视野,引窗外繁华与自然入室;LDBK+X宽厅,构造大客厅,妥帖收藏家人的一切欢然时光。中环置地中心.望云售楼处预约电话☎:✅✅

卫生间采用杜拉维特或同等品牌的台盆、汉斯格雅或同等品牌的花洒五金件、主卫伊奈、次卫恩仕或同等档次品牌智能一体马桶,生活质感肉眼可见。
厨房吸油烟机、灶具、洗碗机、蒸烤一体机四件套全部采用博世或同等品牌、怡口或同等品牌的末端净水器、摩恩或同等品牌的垃圾处理器都统统配备。
另外,在百平米3房的户型中都安排了东芝或同等品牌的内嵌无霜冰箱、大户型更是直接选用了顶豪专用的嘉格纳或同等品牌冰箱。
大量的隐藏收纳柜,让业主随心所欲的大量囤货、购买心仪之物,并且能保证居住空间的整洁、舒适。中环置地中心.望云售楼处预约电话☎:✅✅


本次还增加了非常实用的零食柜和餐边柜,未来业主在这里可以作为自己的一个日咖夜酒区域。中环置地中心.望云售楼处预约电话☎:✅✅


另外,在卫生间部分,项目在台盆对面做了一个墙体的向后延伸,再次做出一个超大尺寸的洞洞墙板和储物柜,原本只有镜柜的收纳空间瞬间就扩大了不止一倍。中环置地中心.望云售楼处预约电话☎:✅✅

整个样板间从户型设计到精装细节到收纳空间,都是值得所有开发商的模仿和学习。
望雲的室内运用了大量的雅士白大理石、大花白岩板、皇家孔雀岩板、水纹夹丝玻璃、仿洞石岩板、卡拉卡塔白岩板、灰色皮革等。
中环置地中心望雲地处宝山南大板块!作为宝山4个重点发展区域之一,南大同时也是上海北部最大的待开发区域之一。
待开发,也就意味着尚未建成!但不管是从规划还是位置来看,南大都是上海少有的能兼顾产业和居住的板块之一。
作为宝山4个重点发展区域之一,南大同时也是上海北部最大的待开发区域之一。
首先南大被称为中心城区一块不可多得的“大衣料子”,总开发体量约540万方,包含两大TOD及约250米天际地标,规划绿地面积占比高达43%!中环置地中心.望云售楼处预约电话☎:✅✅

这是整个南大难度更高、建设周期更长的超级大组团,除了住宅外,还有一栋约250米高的地标办公楼和商业。
这个组团的启动,意味着整个南大的发展彻底进入快车道,也意味着南大的发展确定性更强了。中环置地中心.望云售楼处预约电话☎:✅✅

和其他区域边拆边建式的零散开发不同,而是统一拆改后再集中规划,这样的开发形式,也决定了这里的规划从一开始就会相对完整且高能级。

南大智慧城将统筹抓好组团式高强度复合开发、科创产业招引和“云端南大”数字孪生城建设。年内实现南大中央公园竣工,确保数智绿洲二期等项目实现竣工。
总结一下:南大将依托“数智南大”市级特色产业园、合成生物产业园,落地细胞国家中心、通用智能机器人研究院等功能平台,中车资产、中建港航等国央企,捷瑞肯、太初等上市公司、领军企业。

特色公园40余个,人均绿色面积约39.38㎡,是上海人均绿地面积的约3倍。未来可能会是一个超越碧云的大型生态居住区。
(数据来源:上海宝山区政府官网)中环置地中心.望云售楼处预约电话☎:✅✅

华润置地承袭数年发展造城经验,携全新TOD开发理念,邀请5+design、GP、IFG等国际大师团队担纲设计,聚焦这片土地的开发。
近日,揭秘了中环商业案名——中環置地中心万象汇,以万象之名,唤醒一座城市的生活想象,人与人、人与城市、人与自然,在这里盎然生长,以国际化的视野和城市商业名片为强劲引擎,填补区域高端商业的空白。
以一座复合型综合体大城,万象系商业、海派精奢住区、超高层办公塔楼无界汇集,实现“生产+生活+生态”的“三生”融合,将未来公园城市植入其中,建设站城人一体的TOD复合生活场,指向未来的造城实践。将“交通、商业、公园、办公、居住”五大业态一体化集成,引领北中环复合综合体生活方式。

经验证明万象系商业不仅每到之处皆是地标,更是成为拉升板块居住方式和价值的引擎。

“显”上面说了,我更想说的是“藏”,这是一种快生活到慢生活的切换,是一种融合bibo必博官网居住、休闲、商务于一体的生活状态。
繁华易就,隐逸难求,项目南侧就是绵延的走马塘水岸绿廊,营造了“于城市之芯,享一隅之宁静”的生活方式。
在过去32载,华润置地始终怀着共建之心,以城市人文为底色,在融合城市肌理,不断演绎上海的城市精神。从浦东大开发到苏河湾中心礼献城市一江一bibo必博官网河,华润置地每一步都与城市发展高度吻合。2024中環置地中心,与南大再度携手,臻萃世界万象,同频城市发展,礼献未来中环。

交通方面:北侧丰翔路、西侧祁健路、东侧汇丰路已建成通车,07-01地块南侧丰皓路(祁健路-工学路)计划2024年开工建设。

商业方面:项目本身就是一个自带商业的TOD,华润置地规划以万象系列融汇轻奢时尚、休闲生活、运动潮流等多元业态,打造北中环“都市商业新旗舰。
除了未来的万象系商业(规划中),周边还有经纬汇、聚丰购物广场、上坤城市广场、山姆会员店等,购物还是比较方便的。

医疗方面:项目周边有两大三甲级医院为健康保驾护航,本别是:仁济医院宝山分院和华山医院(宝山院区)。

教育方面:周边荟萃南大实验幼儿园、宝山区南大实验学校、上大附小、上大附中、上海大学附属学校、上海大学等全龄化教育资源。

特别声明:以上内容(如有图片或视频亦包括在内)为自媒体平台“网易号”用户上传并发布,本平台仅提供信息存储服务。
罗永浩再回应与西贝预制菜争议:我不反对预制菜,终极诉求只是让消费者获得知情权!希望能够推动中国预制菜相关立法
37岁的于朦胧身亡:揭开了娱乐圈最残忍的线年,杨幂已是刘恺威高攀不起的存在
锐评Model YL:日均订单破万的六座特斯拉比理想i8和乐道L90好?
小米电视S Pro Mini LED 2026系列预售:内置澎湃OS3,6499元起
支持DDR5-9000!技嘉X870E AORUS X3D主板发布:游戏性能提升25%
《编码物候》展览开幕 北京时代美术馆以科学艺术解读数字与生物交织的宇宙节律