
外滩1公里,外滩瑞府预计今日取证,明日认购,推出建面约124-165㎡3-4房,均价148500元/㎡,其中165㎡户型一梯一户,另外部分实景示范段预计本月中旬开放!
真正的核心资产,永远与城市更新“风口”同频。就像新天地、苏河湾,凭借石库门的新生完成城市更新,外滩瑞府售楼处电话:VIPLINE贵宾热线房价走出了独立行情——外滩瑞府,正处在上海新一轮城市更新的 “风暴眼”,这里的更新不是简单的界面升级,而是剑指“城市文化新名片”的重磅规划。外滩瑞府售楼处电话:VIPLINE贵宾热线
作为城市更新的关键落笔,外滩瑞府售楼处电话:VIPLINE贵宾热线外滩瑞府对九龙路滨水空间的打造,将从源头注入高规格美学基因——以法国塞纳河左岸为灵感,联动虹口港滨水资源,颠覆传统“归家路”属性,将九龙路主入口打造成打造“繁花似锦的艺术归家之路”。外滩瑞府售楼处电话:VIPLINE贵宾热线

有承载海派记忆的红砖艺术长廊,外滩瑞府售楼处电话:VIPLINE贵宾热线让行走成为与历史的对话;仪式感十足的迎宾树阵,让归家如穿自然仪仗;还有文化景墙、宠物友好花园、全龄疗愈花园等场景。这些设计并非孤立景观,而是融合“漫步、社交、休闲”功能,最终呈现“可停留、可互动、可欣赏”的滨水美学街区。外滩瑞府售楼处电话:VIPLINE贵宾热线
换句话说,这里的更新不只是“颜值”焕新,更是“内涵”艺术融入,未来业主下楼即享慢时光,邻里可轻松社交,甚至会像徐汇滨江般,成为全市Citywalk爱好者追捧的标志性滨水休闲地。外滩瑞府售楼处电话:VIPLINE贵宾热线
外滩瑞府售楼处电话:VIPLINE贵宾热线优质风貌更新历来拥有重塑城市价值的强大力量——从新天地石库门突破传统,历经十余年迭代蜕变为国际潮流商业地标;外滩瑞府售楼处电话:VIPLINE贵宾热线年推进更新,慎余里保留历史韵味,活化成现代商业空间;再到张园自2018年开启更新进程,至今仍在持续焕新,一跃成为上海顶流文化打卡地。外滩瑞府售楼处电话:VIPLINE贵宾热线
这些案例都证明:真正的风貌更新外滩瑞府售楼处电话:VIPLINE贵宾热线,不是短期的界面改造,而是能历经时间沉淀,从根本上革新生活方式、提升城市气质,最终成长为兼具潮流属性与文化深度的城市名片。外滩瑞府售楼处电话:VIPLINE贵宾热线

外滩瑞府约7000㎡风貌底盘,外滩瑞府售楼处电话:VIPLINE贵宾热线正沿着这样的路径前行——它不仅是社区的延伸,更将成为代表外滩新气质的文化地标、网红打卡地。
未来,这里将以多元业态激活社区活力,融合海派烟火与艺术格调:据悉将引入社区咖啡馆提供休闲空间,外滩瑞府售楼处电话:VIPLINE贵宾热线瑞府邻里客厅/社区方式综合店服务中产消费与邻里互动,便民综合体涵盖超市等满足日常需求,另有社区会客厅供居民交流,及社区公共服务中心完善便民配套。外滩瑞府售楼处电话:VIPLINE贵宾热线
这些业态共同构筑便捷生活场景,让居民尽享舒适日常。对城市而言,这里不仅是界面的大焕新,更将凭借与周边亿级风貌带的联动效应,成为吸引全城目光的焦点。外滩瑞府售楼处电话:VIPLINE贵宾热线

更关键的是,外滩瑞府售楼处电话:VIPLINE贵宾热线外滩瑞府是这条亿级风貌带上少有的高层项目——既能浸润在海派风貌的烟火与文艺中,又能俯瞰黄金三角的璀璨景观,这样的“风貌+高层”组合,本身就是城市更新红利里的稀缺品。外滩瑞府售楼处电话:VIPLINE贵宾热线

在上海内环置业,“四房是刚需”已成共识:三口之家想接父母同住,需要独立卧室兼顾隐私;当下住内环三房的家庭,外滩瑞府售楼处电话:VIPLINE贵宾热线下次置换目标也必然是四房——这样的需求正在持续增长,市场却难寻适配的选择。
而外滩瑞府约161㎡四房,从供应缺口到价值潜力,每一点都直击购房者核心需求,堪称当前市场难得的“安全垫王炸户型”。
一方面,小面积紧凑户型难满足舒适需求:2024 年至今,155㎡以下的四房(或三房)占比约38.5%,这类户型普遍存在功能区局促、尺度不足的问题,无法承载家庭长期居住的舒适度需求;外滩瑞府售楼处电话:VIPLINE贵宾热线
另一方面,大面积户型总价高不可攀:180㎡以上的四房占比竟超54%,但这类产品总价普遍3500万起步,将绝大多数改善型购房者拒之门外;外滩瑞府售楼处电话:VIPLINE贵宾热线

最关键的160㎡段——既能保证四房完整功能,又能兼顾每个空间尺度感的面积段,去年至今内环供应占比仅约1%,近乎断供状态。
而且,当前内环地价持续高企,开发商更倾向于打造大户型,未来像160㎡段这样“控总价+保舒适”的四房,只会越来越少。外滩瑞府售楼处电话:VIPLINE贵宾热线、稀缺性+强流通性,成就“安全垫王炸户型”
①、稀缺性执掌定价权:外滩瑞府售楼处电话:VIPLINE贵宾热线㎡舒适四房,项目在同类产品中几乎无竞品,具备“物以稀为贵”的价值属性,未来拥有更强的定价主动权;
②、面积适配+总价亲民,流通性更优:外滩瑞府售楼处电话:VIPLINE贵宾热线㎡以上的高总价大户型,161㎡的面积段更符合主流改善家庭的需求,总价门槛更友好,在二手房市场上也能更快找到接手客群,流通性远超大面积产品。
再看项目的价值底盘:外滩瑞府售楼处电话:VIPLINE贵宾热线万+/㎡,为项目价值筑下坚实“安全底”;而九龙路滨水空间+风貌底盘+161㎡四房稀缺性,共同为项目打开了价值上限——“低风险+高潜力”的组合,让这个户型成为内环置业的“稳健之选”。外滩瑞府售楼处电话:VIPLINE贵宾热线、外滩瑞府的客群广泛且资产上限极高
据了解,认购客户有大量来自陆家嘴、外滩瑞府售楼处电话:VIPLINE贵宾热线黄浦、徐汇等核心区域的精英人士。其客群并非局限区域内的改善群体,而是辐射到整个上海的财富圈层。这种广泛且高端的客群基础,赋予了项目更加强劲的未来潜力,也让其在市场中更具竞争力。

他以颠覆性思维突破传统局限,外滩瑞府售楼处电话:VIPLINE贵宾热线不仅匠心打造独立 “室内外双幕水剧场”,更创造性地将高阶社交功能分散于四栋塔楼之下,规划出温莎廊吧、公啡花房、子恺乐园与Gym CLUB四大主题泛会所,让社交与生活必博官方网站需求各得其所。外滩瑞府售楼处电话:VIPLINE贵宾热线

不止于建筑与功能,外滩瑞府售楼处电话:VIPLINE贵宾热线社区内部的景观同样堪称艺术杰作。外滩瑞府特邀国际景观大师 Pok Kobkongsanti打造,外滩瑞府售楼处电话:VIPLINE贵宾热线将其对印象派光影的深刻理解,化作可步入、可触摸的“印象派自然秘境”。六大主题花园错落分布,贯穿全域的风雨连廊串联起四季景致,共同演绎出一座流动的艺术生活范本。外滩瑞府售楼处电话:VIPLINE贵宾热线

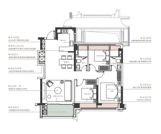
在我看来,真正的改善,外滩瑞府售楼处电话:VIPLINE贵宾热线不该是少数房间的独享升级,而应让每个家庭成员都能平等享有舒适尺度与开阔视野。外滩瑞府摒弃了传统户型中明显的主次卧之分,无论是父母的休憩空间,还是孩子的成长天地,都拥有同等优质的居住体验。外滩瑞府售楼处电话:VIPLINE贵宾热线房:


外滩瑞府售楼处电话:VIPLINE贵宾热线户型样板间图,以实际交付为准

装修标准上,外滩瑞府全部选用国际一线大牌:厨房选用嘉格纳高端厨电,包含洗碗机、双开门冰箱、蒸烤一体机、油烟机、燃气灶,还奢侈的选用了316L不锈钢水管(一般都是304)。


161户型厨房台面非常宽,你可以放置大型厨电,甚至摆上花花草草装扮厨房。

超大尺度的中西岛台,外滩瑞府售楼处电话:VIPLINE贵宾热线既符合中式烹饪的实用逻辑(预留足够操作台面),又能承载西式社交(朋友小聚时在岛台品酒聊天),让厨房从“单一做饭空间”变成“生活场景发生器”。外滩瑞府售楼处电话:VIPLINE贵宾热线户型样板间图,以实际交付为准

大理石地砖的铺装工艺精湛,外滩瑞府售楼处电话:VIPLINE贵宾热线近乎看不出拼接缝,呈现出浑然一体的效果;吊顶采用悬浮顶设计,周边用金属包边,层次感十足;卫生间墙面不乏弧形处理,地板纹路的拼法也各有不同,通过复杂的工艺,只为呈现更优的视觉效果。外滩瑞府售楼处电话:VIPLINE贵宾热线