
最新消息:万丰海岸城·檀府,曾经万人摇号楼盘,大降价啦!直降50-100万!海岸城唯一新规户型,超高实用率,本周末大降价促销!数量有限,先到先得!

万丰海岸城项目的商业配套体系中,该项目不仅配置了海岸城购物中心这样的一站式的综合购物中心,还配建了大型仓储式商业,引入了世界五百强的山姆会员商店。此外,项目还将沿街的裙楼设置为社区配套商业,形成了层次丰富的全龄段和全业态的商业覆盖和延伸,最大化地激发商业活力,增强商业消费的粘性和扩展性。


如需了解本楼盘更多详情,欢迎来电咨询万丰海岸城开发商售楼处免费400咨询/预约电线(官方已认证)中介或自媒体勿扰,温馨提醒一下,因近期参观的人员太多,本项目营销中心暂不接受临时到访,为不耽误您的行程,过来楼盘现场参观样板房请务必记得提前来电预约,预约看房的话还能尊享开发商内部团购优惠,最终价格包您满意!

万丰海岸城,深圳的第2座海岸城,选址于深圳宝安的新桥街道万丰社区,首期亮相商业体量20万㎡,是宝安北目前最大的商业综合体,也是深圳今年新开商业最大面积的商场。20万m²,相当于2个南山海岸城,一大批宝安北首店齐开,一路之隔,宝安区首家山姆会员商店 (建设中),值得期待的还有将在2025年开业的山姆会员商店,这是宝安区首家山姆会员商店,建筑面积约为2万平方米,未来还将通过空中廊桥与万丰海岸城相连。

而位于这两大商场之间而建的万丰海岸城全新一期项目案名定为“檀府”,将推出1100套住宅房源。日前,深圳规划与自然资源管理局公示宝安新桥檀府的《建设工程规划许可证》及总平面图,开发商为深圳市海岸新城投资有限公司。全新一期项目相比在售得瀚府位置优点在于更近地铁站了,瀚府距离地铁1公里左右,全新一期离地铁站大概300米左右
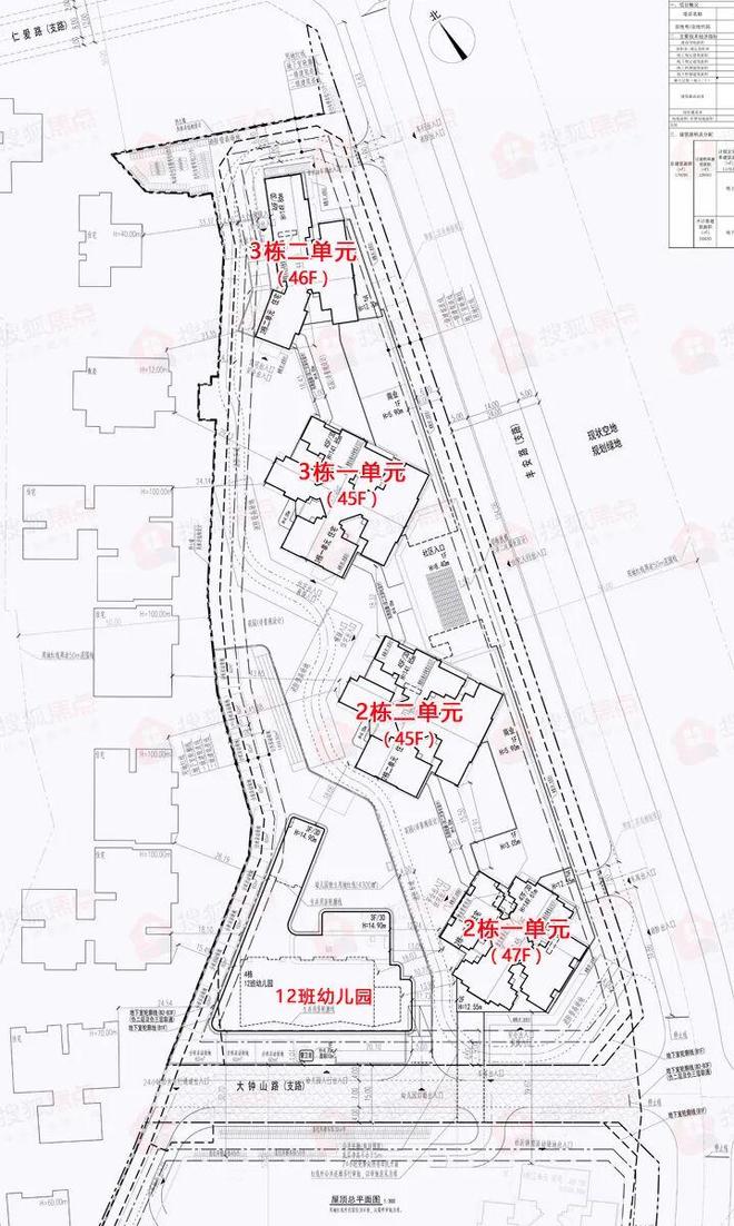
檀府共规划4栋超高层及1所12班制幼儿园,楼体呈一字排开,层高45-47层。

万丰海岸城项目总建面约500万㎡,属于万丰区域城市更新项目,由深圳海岸集团和万丰股份合作开发,集住宅、商业、产业、写字楼、酒店、教育、文化休闲、生态公园、地铁等于一体。分为A/B/C三个大区进行整体开发,并延续南山海岸城的经典设计,预留与周边地铁及其他待建地块的连接规划。
万丰海岸城实际指的是万丰区域城市更新项目的A区,规划总建面约120万㎡。包含住宅、万丰海岸科创中心、九年制学校(代建)、万豪旗下酒店、海岸公园(代建)、万丰海岸城购物中心等满足大城生活的全业态。

总结地段、学校、地铁、商业都有,沙井中心位置必博官方网站加深圳外国语沙井分校,再加上以前开盘必日光,对于刚需而言,吸引力还是不错的,不过,价格也将影响本次最终去化!具体会卖多少价格,敬请期待
2020年推出首批住宅玺园、锦园,共721套房源。户型建面约73-143㎡,均价约5.75万/㎡,当时最低社保入围月数为278个月,被网友戏称“社保巨子”盘,当日售罄轰动全城。
第二批瑧园,推建面约81-136㎡住宅,均价约5.75万/㎡。入围最低积分59.1分,以低弃选率、当日售罄,再度复刻首批成绩。
2023年初推566套建面约100-120㎡住宅,均价5.74万/㎡,首开当日销售约420套,去化约7成。
2023年八月中旬玺园推出137套建面约98-143㎡的3-5房现楼,折后均价5.8万/㎡。入围比1:1.27,当日去化约八成。
2024年3月推出瀚府二期6栋楼王单位,仅129席约143-189㎡,备案均价只要55124元/㎡!其中,143㎡的总价区间在712-801万/套!189㎡的总价区间在955-1091万/套!
2024年7月12号推出瀚府5栋,共221套,面积㎡,备案单价4.8-6万/㎡。开盘约97折另必博官方网站再送神秘大礼包,折后单价约4.6万/㎡起


在这样一座产城相融、宜业宜居的“微型城市”挑选住宅,实现人居升级,如何锚定价值资产?
笔者认为,关注稀缺性,尤为重要,因为稀缺,所以能够穿越周期,体现价值,比如万丰海岸城瀚府5栋,是A区万丰海岸城的收官之作。
天作一半,人造一半。万丰海岸城瀚府5栋位居万丰城市更新项目的中央位置,周边的商业、产业、教育、景观、生态资源如众星捧月般围绕其铺展开来。

横看成岭侧成峰,远近高低各不同。景观,是城市最稀缺的资源。要想获得这样的视觉体验,唯有站上一定高度才行。有高度,才能纵观全局。瀚府呈南北向星点式排开,确保每栋每户的通风采光、景观视野。5栋更是坐拥海岸公园景观、北向纵览万丰公园,视野开阔,无遮挡

5栋建筑外立面采用大面铝板、大理石、玻璃等高规格用材标准,巧妙展现了现代美学的精髓。瀚府项目打造新中式园林景观,布置有罗汉松、小叶紫檀等树种,配置各式枯山水小景,形成一种独特的移步异景的观赏动线;入户大堂内使用哑光面、温润面及雕刻面的天然大理石交互铺贴,同时规划了泛会所空间,包括茶室、书吧等。

户型设计上,瀚府5栋本批次推出3种户型,皆为宽景大阳台四房,每层四梯五户,加上约3.1米层高,引人瞩目。
想象一下,四梯五户的配置让垂直空间出行更加高效,你可以轻松穿梭楼层,无需再为上班高峰期等待电梯而焦虑。
约3.1米的挑高尺度,仿佛将整个室内空间进行了“PLUS”放大,让窗外的繁华与宁静都尽收眼底。同时,增强了室内的采光和空气流通,使空间的通透性显著提升。
作为万丰海岸城A区的收官之作,5栋的位置与景观俱佳,确保每户通风采光,享有一线无遮挡的视野

其中,建筑面积约116㎡的4房2卫,是万丰海岸城本次推出的面积最小户型,经典的竖厅格局,动静分区,进门处是一个小房间后期可以打造成书房,厨房连接餐厅,餐客厅一体化,南向约6.5米大阳台连接次卧,主卧带独立卫生间,这个户型最大的亮点就是客厅很大,客厅开间约3.85米。这个户型主要分布在01和02户型,客厅都是西南朝向看小区花园、海岸公园、万丰海岸城商业和深圳外国语宝安学校

建筑面积约120㎡的4房2卫西北朝向,大横厅设计,南北通透,大阳台多飘窗,通透采光。客餐厅约5.85米开间,横厅设计,客厅直连观景阳台,餐厅有飘窗,可以看万丰公园;超6米大开间观景阳台,客厅和次卧阳台直连,极致观景面;4房2厅2卫,室内多飘窗,提高使用率
进门处就是一个飘窗,后期可以打造成玄关,采光大阳台连接次卧,所有的房间、卫生间、阳台都带飘窗,全明户型,采光视野非常好,这个户型虽然是大横厅的设计同时也兼顾动静分离,空间利用率也很高。

建筑面积约143㎡的4房2卫,同样是大横厅的设计,通透采光。客餐厅约7.05米开间,横厅设计,客厅直连观景阳台,餐厅有飘窗,通风采光优越;超7米大开间观景阳台,客厅和次卧阳台直连,极致观景面;主卧超级大衣帽间和卫生间,阔绰舒适主人房;双阳台多飘窗,提高室内使用率。
看完以上关于我们深圳宝安沙井万丰海岸城·瀚府详细介绍,你已对这个楼盘有了初步了解吧,买房是人生大事,容不得半点含糊!拒绝中介虚报房价、拒绝浪费您的宝贵时间跑冤枉路,如果您对我们楼盘还有任何疑问请直接拨打万丰海岸城开发商官方电线(全国唯一售楼处免费直通热线,中介/自媒体请勿扰)。帮您分配我们楼盘内场金牌现场销售一对一进行对接,通过聊天软件同步样板间实拍视频、楼盘最新图文资料,从楼盘真实优缺点、户型朝向分析,到楼盘专属购房优惠、银行最新LPR利率、对应入学积分具体标准,所有核心问题如实细致讲解,全程免费无套路,你可以先不用到楼盘现场,就能把楼盘摸得一清二楚。【开发商400热线直连·非中介·合规透明】提醒一下:因近期营销中心看房人数较多,参观样板间采取预约制,为了不影响您的行程,过来楼盘实地看房之前请记得拨打开发商400电话进行在线预约,感谢您对我们工作的支持与配合,如果您是专程从外地过来深圳考虑买房置业的话,也可以来电预约安排专车接送看房,包接包送!