
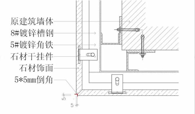
石材对接收口是石材施工中的重要环节,其大小直接影响到整个外墙的观感和质量。因此,合理的对接收口大小设定是非常必要的。
一般来说,石材对接收口大小应该根据具体的设计要求和施工条件来确定。在常规情况下,对接收口大小建议在10-15mm之间。这个尺寸既可以满足石材安装时的调节需要,又不会因为过大而影响整体美观。

同时,对于不同类型的石材,对接收口大小也有所不同。例如,对于重质石材,对接收口可以适当加大,以增强安装稳固性。而对于轻质石材,对接收口可以相应减小,以提高整体美观度。
外墙干挂石材留缝大小也是石材施工中的关键问题,合理的留缝大小不仅关系到整体外墙的美观度,还与施工安全和耐用性密切相关。

通常情况下,外墙干挂石材的留缝大小建议在5-8mm之间。这个留缝尺寸既能满足石材膨胀变形的需求,又不会因为过大而影响整体效果。
同时,留缝大小也需要考虑具体的设计要求和施工条件。在一些特殊情况下,可以根据设计要求对留缝大小进行调整。例如,在一些具有特殊风格的建筑中,可能需要更宽或更窄的留缝来满足设计效果。

此外,留缝大小还需要考虑石材的特性。对于一些具有较大膨胀系数的石材,留缝应该相应加大,以避免因膨胀而导致石材破裂。对于一些膨胀系数较小的石材,留缝可以相应减小,以提高整体效果。

下面以一栋实际建筑为例,分析石材对接收口及外墙干挂石材留缝大小的应用情况。该建筑为现代风格,外墙采用灰色花岗岩,对接收口和留缝大小的设计要求为:对接收口大小为12mm,留缝大小为6mm。

在施工过程中,首先根据设计要求和实际情况,选择了合适的石材和配件。然后,根据计算好的尺寸进行石材切割和磨边,确保石材的精确度和边角弧度。接下来,进行石材安装,先进行初步固定,然后进行调整和对接收口处理。最后,对外墙进行整体清洁和修补,确保整体效果和质量。

在实际应用中,该建筑的外墙石材安装效果得到了业主和设计师的高度认可。通过对接收口和留缝大小的合理设定,不仅提高了整体美观度,还保证了施工质量和安全。同时,合理的对接收口和留缝大小也增加了建筑的耐用性和使用寿命。

本文分析了石材对接收口及外墙干挂石材留缝大小的问题,提出了相应的建议和解决方法。通过对实际应用案例的分析,证明了合理设定对接收口和留缝大小的重要性。在石材施工过程中,应根据具体的设计要求和施工条件来确定对接收口和留缝大小,以确保整体效果和施工质量。同时,对于不同类型的石材和特殊情况下的设计要求,也需要进行相应的调整和处理。

总之,合理的对接收口和留缝大小是保证石材施工质量和美观度的关键因素。在实际应用中,应根据具体情况进行细致的分析和设计,以确保整体效果和质量达到最佳水平。
特别声明:以上内容(如有图片或视频亦包括在内)为自媒体平台“网易号”用户上传并发布,本平台仅提供信息存储服务。
114-95!文班17+14+6封盖,马刺必博平台轻取开拓者,4-1挺进西部半决赛
19岁中国女孩被困缅甸,交20万赎金园区仍未放人,同园区脱困者视频记录惊魂逃亡路
8-8!29岁赵心童找回状态 压哨连赢2局追平墨菲 强势轰单杆117分
城区油耗2L级 长安逸动/CS75 PLUS蓝鲸超擎抢订价7.99万起