
外滩的房子,要么缺生活烟火气,要么少私密舒适度”—— 这是不少高端购房者对上海外滩住宅的普遍认知。而外滩瑞府却以 “反常规” 的规划思路,完美解决了这一痛点:项目落位外滩核心与城市生活区的衔接处,既享外滩的璀璨繁华,又近邻老城厢的烟火气息,周边菜场、便利店、优质学校等生活配套一应俱全;在产品设计上,主打建面约 160-260㎡宽境户型,采用 “动静分区”“主卧套间” 等科学布局,部分户型配备独立观景露台,将江景与社区园林景观双重纳入室内;更值得一提的是,项目特别注重居住私密性,通过人车分流、专属入户大堂、电梯刷卡到户等设计,为业主营造 “闹中取静” 的居住氛围。这种 “兼顾繁华与私密、融合景观与生活” 的特质,让它成为外滩高端市场的 “稀缺变量”。
当下购买新房,购房者往往不求涨幅过大,更看重品质超前和稳健保值,从这一点来说,外滩瑞府“安全垫”实在太厚了!
外滩瑞府离外滩更近,绿城地王位于北外滩,两者直线万/㎡。您认为品质差不多的情况下,未来差价有这么大?
此外,外滩瑞府甚至比下游的邮电新村站周边新房还便宜约1.8万/㎡,更不用说与杨浦相比了,对下游板块简直是降维打击。
与平行区域新房有4-5万/㎡差价,比下游区域还划算,显然外滩瑞府是对抗未来市场风险能力更强的选择!

其次,在距离外滩1公里范围内,楼盘单价普遍达20万/㎡,只有外滩瑞府给出14.78万/㎡的上车机会。
以外白渡桥为中心,外滩瑞府是1公里半径内,内环改善型买家最后的上车机会,其他楼盘几乎都是顶豪级价格。

第三,独特的风貌底盘远比千篇一律的现代建筑更有穿透力,也让其在市场波动中拥有更稳健的价值根基。

其三,城市记忆的情感联结,让项目跳出单纯的居住或商业属性,成为可触摸的文化地标。
其四,从西向东连接起安康苑、弘安里、静安里、外滩瑞府等风貌建筑,一个亿级TOP级圈层也悄然确立。
此外,外滩瑞府在保留风貌建筑的同时,规划植入文化艺术分馆、精品咖啡工坊、黑胶唱片店等“高级烟火气”业态,让老上海的“弄堂温度”与国际生活方式碰撞出新火花。

因为占位“世界级黄金三角”,并拥有超强通达性,外滩瑞府所链接的是全上海的高净值人群。
✔轨交:近10号线号线,便捷直达陆家嘴。同时毗邻海伦路站,4/10/19号线(在建)交汇,可便捷去往内环各重要节点。
✔自驾:从项目出发,通过新建路隧道可直达陆家嘴;通过吴淞路-外滩隧道联通黄浦核心。

因此据了解,不少工作在黄浦、徐汇、陆家嘴等核心区域的精英人士都将目光投向了这里。其客群并非局限于区域内的改善群体,而是辐射到整个上海的财富圈层。这种广泛且高端的客群基础,赋予了项目更加强劲的未来潜力,也让其在市场中更具竞争力。


作为华润置地落子上海的巅峰之作,外滩瑞府以顶豪级品质,在设计与规划中注入定制化元素和艺术质感,每一处细节皆彰显对精英生活的深刻理解。

高层基座溯源石库门建筑精髓,复刻经典拱券符号;中段以通透玻璃幕墙搭配流线型金属线条,营造国际前沿的现代质感;顶部“冠冕”造型,进一步升华昭示性。

同时,你还能看到与翠湖、汤臣一品同款设计师的架空层,风格多样,涵盖罗马意式、法式等,为业主尤其是儿童创造更多有趣的活动节点。
外滩瑞府突破市区项目常见的「兵列树阵式」布局,通过建筑楼体的精密偏转,形成罕见的围合式社区形态。

✔中央景观与边角院落形成多维度空间层次,搭配不同主题的花园设计,让散步成为穿越不同场景的微旅行。
这种布局不仅让采光与视野实现「均好性」,更以社区向心力凝聚圈层归属感,重新定义顶豪社区的社交尺度。
项目还配有泳池会所,为业主提供了高品质的休闲与社交空间,进一步彰显了项目的顶级定位。
全域风雨连廊是项目的又一亮点。外滩瑞府将风雨连廊扩容为完整的归家体系,实现了全住宅楼栋无风雨归家。无论是刮风下雨,业主都能从容穿梭于社区之中,这份贴心与便捷,带来的正是顶豪级的归家居住体验。


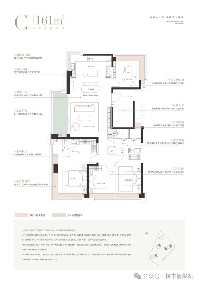
接着看户型,我十分青睐项目户型设计理念,主打的是舒适度与景观视野的平权。
在我看来,真正的改善,不该是少数房间的独享升级,而应让每个家庭成员都能平等享有舒适尺度与开阔视野。外滩瑞府摒弃了传统户型中明显的主次卧之分,无论是父母的休憩空间,还是孩子的成长天地,都拥有同等优质的居住体验。
毕竟,若家人未能一同享受到改善带来的品质提升,这样的“改善”显然是不完整的。

先给大家一组数据:常规120户型,客厅面宽4米左右,两个次卧面宽约2.7-2.8米。
而该户型客厅面宽达约4.5米,接近市面140户型客厅面宽;且三个卧室面宽全部超3米,儿童房能放下一个床头柜加书桌,父母房能放下大床同时保证床位过道宽裕,实现家庭成员居住上的“平权”。


不仅如此,该户型还有大面宽阳台搭配5个飘窗,实用面积相当可观。项目窗墙比很高,厨房的窗户很大,北房间采用无墙垛设计且配备了几乎一整面窗,通透感十足。
另外,在整体动静分区的格局下,U型厨房不只是单纯的烹饪场域,更融入“社交属性”,让人们在烹饪的同时,也能与客厅的家人交流。


这是市面少有的360°视野的户型,全屋四个转角窗(北卧、厨房、阳台、主卧),不管你在哪个房间,都能欣赏城市景观。
厨房、餐厅、客厅与阳台必博首页相连通,形成联动空间,尺度感十分阔绰。对于二胎家庭而言,这里足以让孩子从容玩耍,也能同时容纳子女弹琴、母亲做手工、父亲办公,满足家人多样化的活动需求。

三卧朝南,同样几乎等面宽处理,不是“3+1”,妥妥标准4房,让阳光和舒适尺度成为给予每个人的平等馈赠。


主卧套房的L型衣帽间与卫生间,公卫打造独特的四分离系统,实现独立洗漱台、卫生间、淋浴间、洗衣区互不打扰,将酒店化体验引入住宅。
装修标准上,外滩瑞府全部选用国际一线大牌:厨房选用嘉格纳高端厨电,包含洗碗机、双开门冰箱、蒸烤一体机、油烟机、燃气灶,还奢侈的选用了316L不锈钢水管(一般都是304)。


161户型厨房台面非常宽,你可以放置大型厨电,甚至摆上花花草草装扮厨房。


在收纳方面,分类极为精细:不仅有专门放置鞋子、衣服的柜子,还有用于收纳不常用的医药箱、行李箱、运动器械的专属格子,甚至还有独立的零食柜;161户型更配有酒柜。


大理石地砖的铺装工艺精湛,近乎看不出拼接缝,呈现出浑然一体的效果;吊顶采用悬浮顶设计,周边用金属包边,层次感十足;卫生间墙面不乏弧形处理,地板纹路的拼法也各有不同,通过复杂的工艺,只为呈现更优的视觉效果。

外滩瑞府售楼处电话:上海外滩的稀缺性,从来不止于 “江景”,而是 “江景 + 核心地段 + 优质生活” 的完美融合 —— 外滩瑞府恰好精准契合了这一核心需求。无论是三口之家的成长需求,还是高端人士的品质追求,这里都能提供 “一步到位” 的居住解决方案。若你想进一步了解项目的园林设计、户型细节或物业服务,欢迎拨打外滩瑞府售楼处电话必博首页:,专业顾问将为你一对一解读,助你抢占外滩 “稀缺生活资源”。
近日,《上海市浦东新区杨思社区Z000602单元控制性详细规划20Da、20Db、20Eb、21Aa、21Ab、21Ba、21Bb及21Ca街坊局部调整》草案正式公示。

其中,一宗编号为20Da-01的住宅用地规划有所调整,引发市场关注。该地块紧邻近期热销的翡云悦府项目,区位优势显著。
根据规划,地块将新增1处老年活动室,建筑面积不小于200平方米;新增1处日间照料中心,建筑面积不小于200平方米;新增1处健身点,占地面积不小于300平方米。
调整后,该地块规划为三类住宅组团用地,用地面积约2.93万平方米,规划总建筑面积约7.34万平方米,建筑高度控制在80米,地块需配套建筑面积均不小于200平方米的文化活动室、日间照料中心和老年活动室,以及一处建筑面积不小于100平方米的生活服务点,和占地面积不低于300平方米的健身点。

另外,本次同步调整的还有周边地块功能与开发指标,原20Db-01社区文化用地调整为九年一贯制学校用地,并与相邻的20Db-02地块合并为20Db-04地块。
21Aa-01地块容积率由4.5下调至3.1,建筑高度由120米降至60米;21Ab-01地块容积率由1.5提升至3.1,建筑高度放宽至50米。两地块在混合用地建筑量比例上也相应调整,整体布局更为集约。
新杨思板块作为横跨浦东三林与北蔡的新兴区域,总面积约2.72平方公里,被定位为浦东金色中环带上的“微型中央活动区(MCAZ)”。

近年来,新杨思板块在土地市场与新房市场均表现活跃,屡现“地王”与“日光盘”。例如,2024年11月,华润置地、越秀及中能建联合体以约78.97亿元竞得区域内一宗宅地,楼面价约7.44万元/平方米,溢价率超40%,创下上海集中供地以来的溢价率纪录。今年2月,华润与越秀再度联手拿下同片区另一地块,楼面价进一步升至约7.47万元/平方米。
新房市场同样热度不减。板块首发住宅项目“新杨思上园”目前已售罄。目前在售的翡云悦府表现抢眼:一期自今年4月推出以来,累计推售706套房源,已售672套,去化率约95%;二期于7月底开盘,推售369套,目前已售273套,去化率约74%,期间多次实现“开盘即售罄”。