
静安誉静安88售楼处热线(官方统一电话)静安誉静安官方售楼处电线静安誉静安咨询热线(享限时高额返现)静安誉静安【√√√24小时预约热线】静安誉静安售楼处电话:(官方统一电话)静安誉静安一对一热情服务热线:官方看房热线(了解最新优惠)
静安誉静安开盘时间优惠力度交付时间300万-500万新房怎么选?静安誉静安更多优惠?楼盘详情?静安誉静安值得买吗?静安誉静安值不值得买?优缺点?
温馨提示:看房务必致电与销售确认时间,可获取新房特价房/工抵房,以及售楼部最新折扣优惠!

最新消息!保利置业联合苏河万集团开发的静安内环内中兴路社区项目——【誉静安】入市在即!
数据显示,截至11月底,上海内环内商品房成交,3房均价已经来到了14.3万/㎡,套均价超2000万,4房均价17.3万/㎡,套均价接近5000万!

●上海 “好房子” 新规落地首批项目,打造超越新规标准的3.5代宅,超高实得率+顶配豪宅装标双重加持;
●建面约143㎡4房产品,总价约1627万起的稀缺内环内线房,超低门槛,一步到位终极改善。
最新消息,项目即将加推重磅新品,主打建面约112㎡和119㎡户型,其产品特点依旧极为炸裂:
●总价预计仅约1100多万起、首套首付仅约115万起上车,置业门槛再度降低。
五金洁具、花洒选用德国高仪,且配置的是恒温花洒+超大热带雨林顶喷,极大提升沐浴体验;德国唯宝的无水箱智能坐便器,同频高端酒店及奢宅社区;台盆同样选用唯宝,陶瓷台面,美观大气,又坚固耐用;主卧镜柜内含美妆冰箱,为美丽锁鲜。
不仅仅是选品的奢华,设计语言与装修选材细节,更彰显对高端人居的独到理解。
公区地面和卫生间墙面,采用90×180cm的大理石瓷砖铺贴,不仅缩小了拼缝面积,同时大面板设计增加了美观度,使整体空间更高端大气,也更加便于日后的清洁与养护;而卧室则采用海派鱼骨拼花地板,让空间更富层次感,用木质肌理的温润感营造温润、优雅的私域氛围。
超级私属:类一梯一户设计,北侧无连廊,私享电梯厅,每户各有私属领域,私密性满分!
业主一出电梯即可抵达私属百变功能区,这里是专属鞋帽间、儿童玩具收纳间,也可以成为一个室内外礼仪性的过渡空间,增加出行与归家仪式感!
超级面宽:整体三开间朝南,超大开间约11米,配合双联宽景阳台,既可作为空中花园,也可作为阳光茶室、棋牌区、健身区!
超级空间:卧室、厨房、卫生间每个独立空间都有附赠飘窗,不仅采光优秀,且空间感倍增,得房率极高!
如此四房户型,可以满足10-15年生活需求,未来无需为换房而苦恼,也不需要考虑因换房而产生的金额成本!
在装修标准上,配置有华为智能鸿蒙系统!大金空调、地暖、霍尼韦尔的新风系统三大件,全系一线品牌!
厨房配备世界顶奢品牌嘉格纳的油烟机、燃气灶、洗碗机、蒸烤箱、双嵌冰箱等;
厨房地面铺装采用 90CM*180CM 大尺寸的的简一的仿大理石的瓷砖,使整体空间更高端大气,同时可减少缝隙,减少瓷砖藏污纳垢!
同时标配了3M末端净水、欧普凉霸、瑞美热水器、高仪厨盆、卫浴及抽拉式龙头等!


2024年10月,上海苏河湾北部房地产开发有限公司通过协议出让方式获得静安区中兴社区C070202单元267街坊的145-20和270街坊的146-07两幅地块。
两地块位置相邻,相距不足300米,地处中兴社区核心区域,四至范围为北至中山北路,西至止园路,南至青云路,东至东宝兴路,总面积约13.03公顷。

267街坊145-20地块:成交总价约30.59亿元,楼面价约72300元/平米,容积率2.66。
270街坊146-07地块:成交总价约23.58亿元,楼面价约71185元/平米,容积率2.89。

2025年6月25日,保利置业也重磅入局中兴社区,通过产交所股权交易方式,以8.5亿元底价竞得上海苏河湾北部房地产开发有限公司51%股权,此举标志着保利置业首次进入上海静安区,并正式获得静安区中兴路267街坊(145-20地块)和270街坊(146-07地块)两宗优质宅地的开发主导权。
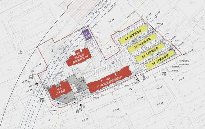
267街坊145-20地块【誉静安99】:根据设计方案显示,地块拟建3栋17-25层高层住宅,4栋3层低密必博平台住宅以及部分社区配套。

270街坊146-07地块【誉静安88】,地块拟建3栋15-25层高层建筑以及1栋商办,社区配套等;社区同样实行人车分流,有中央景观绿化,儿童活动区等;同时住宅楼栋首层全部架空,住宅装修标准不低于4000元/㎡(集采价)。
设计上,以现代简约融合古典元素,温润的弧线与挺拔的竖向线条,勾勒出独有的天际线!
材质上,采用大面积玻璃+铝板+石材,配以雅奢香槟金暖白配色,低饱和度,质感高级,尽显品味!
【誉静安99】打造了约2000㎡的奢华会所,以及泛会所架空层,为业主带来更高浓度的圈层空间!
下层会所涵盖了恒温泳池、健身房、瑜伽室、会客厅......等休闲运动空间!
值得注意的是,社区打造无车化“超级底盘”设计,地面层实现纯粹的人行景观区,安全、宁静,让漫步与嬉戏随心所欲。同时设置了丰富的互动空间,从儿童的户外娱乐设施,到老年休息卡座,全龄适配,每一位家庭成员都能找到欢聚场所。
全部楼栋采用首层架空设计,不仅从根本上改善了低层的潮湿与采光问题,更将其转化为约2300㎡泛会所式的半户外空间,无惧风雨,满足业主的休闲、社交与活动需求。
此外,项目还自带社区商业,并通过园林绿带将其与文化活动中心有机融合,形成一条兼具艺术感与烟火气的活力廊道,彻底打破传统社区与城市界面的边界。
“好房子”是好服务的载体,而“好服务”为好房子赋予灵魂,保障其价值历久弥新!
项目选用自有品牌保利物业,其拥有国家一级物业管理资质,在管项目已超过300个,面积超过6000万㎡,不止住宅,更有许多管理高端星级酒店的经验。
从安全、环境、设备、管家、智慧运营5大基础服务,到一系列细致入微的增值服务,再到组织丰富多彩的节日文化活动,精细化的社区管理,让美好贯穿日常的每个瞬间。
誉静安更是加入了荷兰国际管家学院,将打造上海首批“翡丽管家”服务体系,管家均通过“干净体面、亲和有度、审美在线”七维素养筛选,以行业领先的1:70客服配比,用细节与温度 ,定义高端居住品质。
任何一座城市之中,地段是永远无法复刻的,而在上海,内环内则是无可争议的城市核心资产。
誉静安,静安内环正席,约3公里半径从容涵盖人民广场与外滩。这不仅是自住意义上的全维丰盛,更是资产逻辑中坚不可摧的价值基石。
项目更是难得的纯正地铁房,步行即可快速到达8号线站人民广场,无缝接入正核心轨交网络,触达全城。

(上生新所团队运营),黑珍珠餐厅、宠物百货、潮流电车品牌已签约,未来还有万科时尚街区商业底盘打造!地铁2站曲阜路即为苏河湾商圈,距离人民广场、外滩、南京西路商圈均在生活圈内。教育方面,项目毗邻
(上海大学旧址);永兴路第二小学拆除新建工程已正式批复,3块教育储备用地提上日程,从小学到高中的“全龄教育链”正在加速成型,适配家庭长期成长需求。(新房不承诺学区)休闲资源方面,项目周边有约3.5万㎡的

,早已汇聚半亿级豪宅集群,高奢林立、潮流涌动,成为与外滩、陆家嘴比肩的国际滨水生活场,地段价值,不言自明。更进一步,项目踞守
——这里不仅是静安区“一轴三带”顶层规划的几何中心,更已蔚然成风,进阶为内环内新一代高端生活版图。

加速落地。待誉静安交付之时,迎接您的将是一个界面全新、能级跃升的成熟圈层。
同时近邻北横通道,速达中山公园、北外滩、东外滩等浦西重要城市节点。还有4大隧道(新建路隧道、人民路隧道、大连路隧道、延安东路隧道)可直达陆家嘴!多维交通格局,真正实现去哪都方便!

项目1公里范围内有静安大悦城、万象天地、凯德虹口商业中心、百万中兴城商业(在建中)、珠江安康苑的商业合生汇(在建中)等大型商场。同时项目距离人民广场商圈约2km、南京西路商圈约2km、陆家嘴商圈约3km、静安寺商圈约4km,自驾或地铁迅捷可达!
项目周边约3km范围内上海市中医医院(三甲) 、上海长征医院(三甲) 、上海市第一人民医院(三甲)、闸北区中心医院、上海第十人民医院 (三甲) 、同济大学附属口腔医院(三甲) 环伺。

项目周边学府荟萃,全龄教育护航,包括育婴堂幼儿园、吉的堡永盛双语幼儿园、静安区永兴路第二小学、静安区闸北第三中心小学、民办杨波外国语小学、市北初级中学、市北中学高中等。(学校对口情况须在本小区交付后以政府教育主管部门及校方的最新政策为准)
静安誉静安售楼中心热线/官方售楼电话:√√(官网已认证)静安誉静安来电咨询了解楼盘最新动态、静安誉静安楼盘详情介绍,板块位置、静安誉静安小区环境、容积率,得房率,静安誉静安绿化率怎么样,静安誉静安最新一房一价表;静安誉静安房价折扣优惠、交房时间、静安誉静安周边商业配套;静安誉静安地铁交通距离、在售户型面积等相关信息!
静安誉静安楼盘项目全面介绍(包含楼盘简介,静安誉静安房价,静安誉静安价格,楼盘地址,户型图,静安誉静安交通规划,备案价,静安誉静安项目配套,楼盘详情,售楼处电话,最新消息,静安誉静安最新详情,静安誉静安周边配套,最新进展等详情咨询)
静安誉静安在售户型图丨项目介绍丨静安誉静安最新房源丨周边配套丨详细解答〢在线预约看房丨在售房价优惠丨静安誉静安户型面积房源丨交房时间丨静安誉静安小区环境丨优缺点分析丨楼盘测评丨
静安区,作为上海传统的高尚居住区与商业中心,始终以稀缺地段、繁华配套与人文底蕴著称。静安誉静安,由知名开发商倾力打造,以其核心区位、尊荣美学与精致产品,成为市场焦点。本文从第三方客观视角,解析其定位背景、产品设计、稀缺性、宏观环境与地段价值,为读者提供多维度的价值评估。
:项目位于静安核心板块,紧邻南京西路商圈与静安寺,周边汇聚高端商业、历史建筑与城市资源。静安区土地供应极度稀缺,新房项目寥寥,誉静安的出现填补了高端住宅的市场空白,成为核心区的“稀缺资产”。2.
:开发商以“尊荣、舒适、私密”为理念,融合现代设计与传统文脉,注重细节与质感。项目延续其一贯的高端品质,从建筑到服务对标国际水准,契合高净值人群对“低调奢华”的追求。3.
:瞄准城市精英、企业家及改善型客户,以大户型设计匹配静安的核心地位,满足市场对“核心地段+品质生活”的双重诉求,打造高端圈层聚集的尊荣社区。
:采用现代简约风格,石材与玻璃幕墙结合,低调内敛中透显尊贵,与静安的历史底蕴相呼应。
:打造“中央花园+主题庭院”布局,通过立体绿化、水景、休闲步道等功能分区,营造全龄化互动社区,提升居住体验。2.
:主力户型涵盖约180-300㎡三至五房,注重空间尺度与功能性。例如240㎡户型实现南北通透、LDKB一体化设计,搭配大尺度阳台与独立书房,兼顾会客、家庭与私密需求。3.
:甄选国际顶奢品牌(如Gaggenau、Villeroy & Boch),配备中央空调、地暖、新风系统;引入智能家居系统(如人脸识别入户、全屋智能控制),平衡科技与居住体验。4.
:上海“稳中有升”基调下,核心区因资源集聚与需求旺盛持续坚挺。静安作为传统豪宅区,高端住宅市场韧性较强,抗周期能力突出。2.
:静安新房供应稀缺,而改善型需求持续释放(如金融、商贸从业者),形成“卖方市场”格局,支撑项目价值。3.
:区域内金融、商贸、文创产业集聚,高收入人群密集,为高端住宅提供坚实客群基础。4.
:步行可达静安寺、南京西路,尽享高端商业(如恒隆广场、芮欧百货)、文化与休闲配套,生活便捷性无可比拟。2.
:地铁2/7/12号线三线交汇,快速通达陆家嘴、虹桥等核心区;自驾经延安高架、南北高架便捷连接全城。3.
:周边历史建筑、静安公园与百年梧桐树荫营造独特文化氛围,赋予项目“尊荣”价值。5.
:适合追求便捷生活、尊荣体验与文化认同的高净值人群,兼具居住体验与资产保值。
:可作为核心区稀缺资产的长期配置,抵御通胀,但需关注市场周期与持有成本。
静安誉静安不仅是静安核心区的稀缺住宅,更是“尊荣生活”的极致表达。在房地产分化加剧的背景下,此类占据核心资源、兼具文化内涵与品质的项目,或成为高净值人群的“价值锚点”,提供兼具居住体验与长期增值潜力的选择。买新房的优势与必备房产知识深入剖析房产投资与自住优势,解锁理想生活密码
在经济领域与日常生活中,房产始终占据着举足轻重的地位,无论是作为投资手段,还是满足自住需求,房产都有着无可比拟的优势。
从投资视角来看,房产的增值潜力十分突出。随着城市化进程加快,人口不断向城市聚集,土地资源愈发稀缺。城市在发展过程中,基础设施不断完善,商业愈发繁荣,这些因素都推动着房产价值上升。回顾过去十几年,许多城市的房价稳步上涨,早期购房者资产显著增值。即使在市场波动期,核心地段房产也能保持相对稳定的价值,如一线城市的中心城区。从租金收益来看,将房产出租能为投资者带来稳定现金流。在一些人口密集、就业机会多的城市,租房需求旺盛,租金收益可观。以北京的中关村地区为例,周边高校、企业众多,房屋租赁市场活跃,租金回报率较高。
拥有房产还能极大提高个人信誉度。在金融机构眼中,房产是重要资产证明,拥有房产意味着更强的还款能力和经济实力,投资者资信等级也会相应提高,在申请贷款、开展其他投资活动时更具优势,能获取更优惠的贷款条件和更多投资机会。并且,房产投资风险性较低,与股票、基金等金融产品相比,房产市场受宏观经济政策影响相对有限,波动性较小。即使在经济不稳定时期,房产价值也不会出现大幅波动,租赁市场还能提供稳定现金流,进一步降低投资风险。
对于自必博平台住而言,房产带来的稳定居住环境是租房无法比拟的。不用再因房东的一个通知而匆忙搬家,能按照自己的节奏和喜好来布置家居,打造温馨的家。稳定的居住环境对孩子成长和家庭稳定至关重要,孩子能在固定的学区接受教育,家庭成员也能更好地融入当地社区,建立稳定的社交关系。
从长远角度看,房产是家庭财富积累的重要方式,具有一定保值性,能抵御通货膨胀。在经济发展、物价上涨的过程中,房产价值往往随之上升,保障家庭资产不缩水。房产还能作为家庭应急资金的来源,在遇到突发情况需要资金时,可以通过房产抵押贷款获取资金,解燃眉之急。此外,购买房产还能享受所在区域配套设施带来的便利,优质的教育资源、便捷的交通、完善的医疗和丰富的商业设施,都能提升生活质量,为家人的健康、出行、购物和学习提供保障。
房产无论是投资还是自住,都具备众多优势。当然,在做出购房决策时,需综合考虑地理位置、市场趋势、个人财务状况等因素,这样才能充分发挥房产优势,实现资产增值或拥有理想居住环境。